Bright 4-Bedroom Apartment with Ocean View in Costa da Caparica
Large T4 apartment of 279.85 m2 with unobstructed views of the ocean and the beaches of Costa da Caparica.
Located on the third floor, this apartment benefits from a lot of light and three large terraces allowing you to make the most of the sweetness of ocean life.
Formerly divided into two individual apartments, the renovation work has allowed the reunification of the two properties with a focus on creating a more airy, spacious and bright space thanks to large openings to the outside.
Guests can also enjoy stunning ocean views from one of the three terraces.
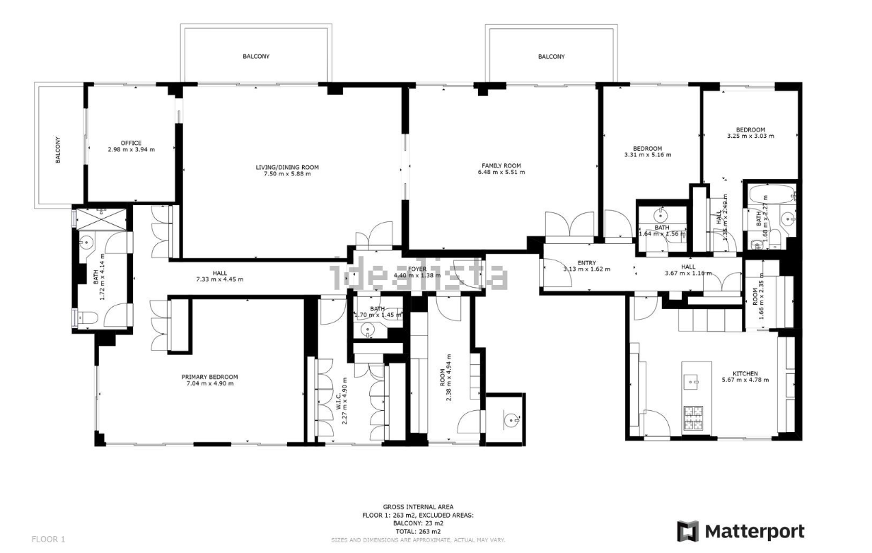
The apartment consists of a large living room open to the dining room, 4 bedrooms including two suites, a fitted dressing room, a very large equipped and bright kitchen, a laundry room and 2 individual toilets.
Its location, slightly higher than sea level, offers magnificent views of the beaches and the Capuchos golf course while being less than 10 minutes by car from the shops and restaurants of Costa da Caparica.
This apartment is also ideal for a family with children thanks to its proximity to schools, including the Almada International School which is a 7-minute drive away and access to Lisbon city centre in less than 30 minutes.
The apartment is sold with two parking spaces.
It is important to point out that the apartment is currently rented. The buyer will have to take over the lease, which will end in mid-May 2028
Located on the third floor, this apartment benefits from a lot of light and three large terraces allowing you to make the most of the sweetness of ocean life.
Formerly divided into two individual apartments, the renovation work has allowed the reunification of the two properties with a focus on creating a more airy, spacious and bright space thanks to large openings to the outside.
Guests can also enjoy stunning ocean views from one of the three terraces.
The apartment consists of a large living room open to the dining room, 4 bedrooms including two suites, a fitted dressing room, a very large equipped and bright kitchen, a laundry room and 2 individual toilets.
Its location, slightly higher than sea level, offers magnificent views of the beaches and the Capuchos golf course while being less than 10 minutes by car from the shops and restaurants of Costa da Caparica.
This apartment is also ideal for a family with children thanks to its proximity to schools, including the Almada International School which is a 7-minute drive away and access to Lisbon city centre in less than 30 minutes.
The apartment is sold with two parking spaces.
It is important to point out that the apartment is currently rented. The buyer will have to take over the lease, which will end in mid-May 2028
Property Features
- Heating
- Washing machine
- Dishwashing machine
- Air conditioning
- Fitted wardrobes
- Equipped kitchen
- Walk-in wardrobe
- Gas central heating
- Proximity: Beach, Golf course, Shopping, Restaurants, City, Hospital, Pharmacy, Public Transport, Schools, Public Swimming Pools, Playground
- Terrace
- Garage
- Built year: 2005
- Floors: 3
- Laundry
- Drive way
- Conservatory
- Storage / utility room
- Views: Sea views, Countryside views, Golf views, Beach view, Garden view
- Video entry system
- Security alarm
- Lift
- Double glazing
- Electric shutters
- Electric garage gate
- Stables
- Pantry
- Main drainage
- Walking distance to beach
- Quiet Location
- Gas fire
- Security door
- Uninterrupted views
- Energetic certification: D
- Solar orientation: North, South, West
- Mains water
- Balcony
- Renovation year: 2020